Call (603) 673-1155
15 East Ridge Dr #312
Milford, NH
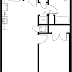
The Crosby, 3rd Flr, 1 Bath, *Non Smoking Property*, Wood Style Flr. in Kitchen/Dining/Living Area, Carpet in Bedroom, Central Air/Heat, Washer/Dryer, Stainless Steel Appliances incl. Micro and Dishwasher, Pet Friendly- Small Breed Dogs 25 Lbs.
- Price Range$1832 ~ $2014
- BR1
- UtlyHW
- SqFt658
- FurnishingsUnfurnished
- Avail11/17/2025
Video Tour
Red Oak Flex Pricing Options
Daily Pricing
Choose Move-in Date
Choose Your Monthly Lease Term
Selected
/ month
Lock in this price now. Call or submit the form below.
We'll lock in this price for you for 48 hours while you decide. A Red Oak Leasing Professional will contact you to answer your questions and help you get the process started.
Let's Get Started
Are you ready to apply for this apartment?
Red Oak
Flex Pricing
Renting has never been easier than with Red Oak Apartment Homes. Our revolutionary Flex Pricing option lets you select your move-in date and the lease term that fits your budget. To see the rental price options that are available now- just select your desired move-in-date and lease term in the “FLEX PRICING OPTIONS” section of the apartment(s) you are interested in.
Contact us using the “LET’S GET STARTED” section to request a tour or ask us questions, or use the “APPLY” button to send us your completed application for the selected apartment.
With Red Oak Flex Pricing you’re the boss.
